PORTFOLIO
O NÁS
KONTAKT
Menu
U M B A U
PORTFOLIO
O NÁS
KONTAKT
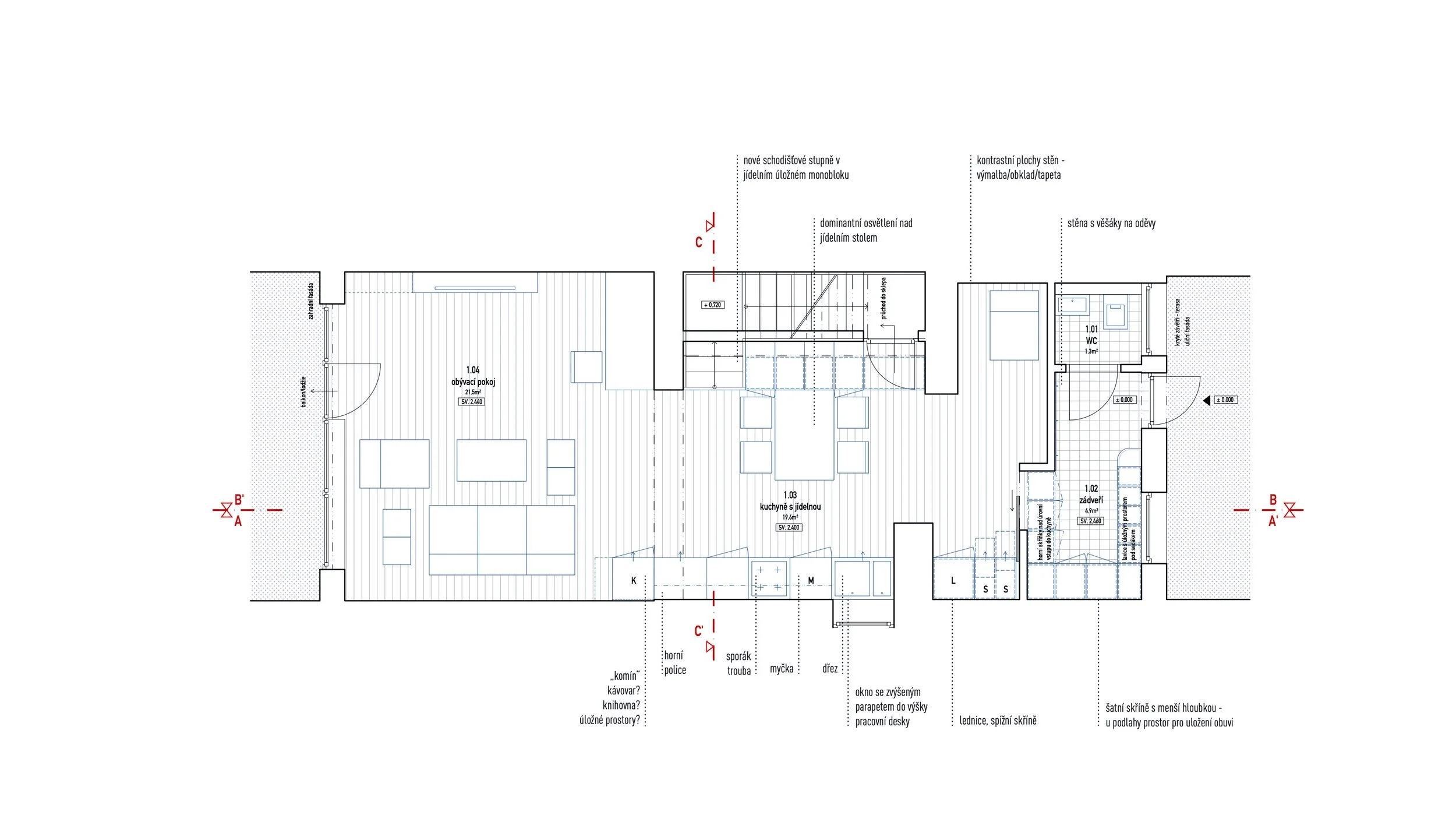
dům s OSB jádrem
Proboštov
návrh stavby/realizace
2020 - 2021
JK