PORTFOLIO
O NÁS
KONTAKT
Menu
U M B A U
PORTFOLIO
O NÁS
KONTAKT
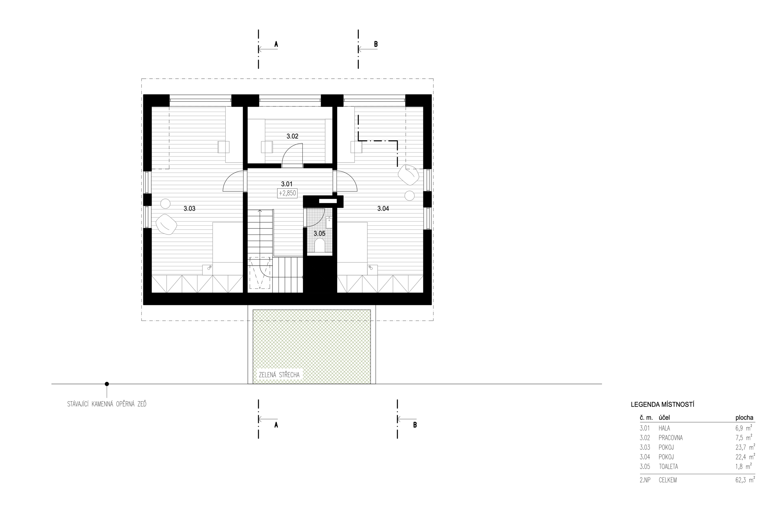
návrh přestavby rodinného domu v Českém středohoří
Velemín
návrh stavby
2026
JK | JL